Carlisle
Belvoir
Carlisle
Bedrooms
5
Baths
4
Garages
3
SQ FT
4289
Story
2
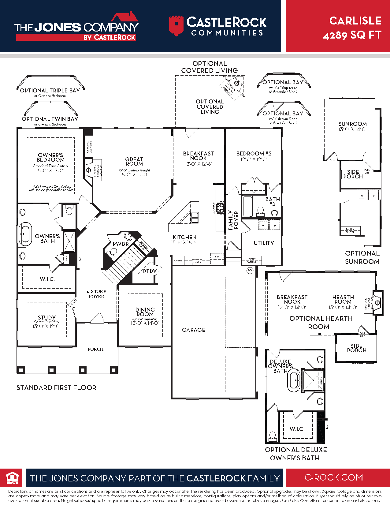
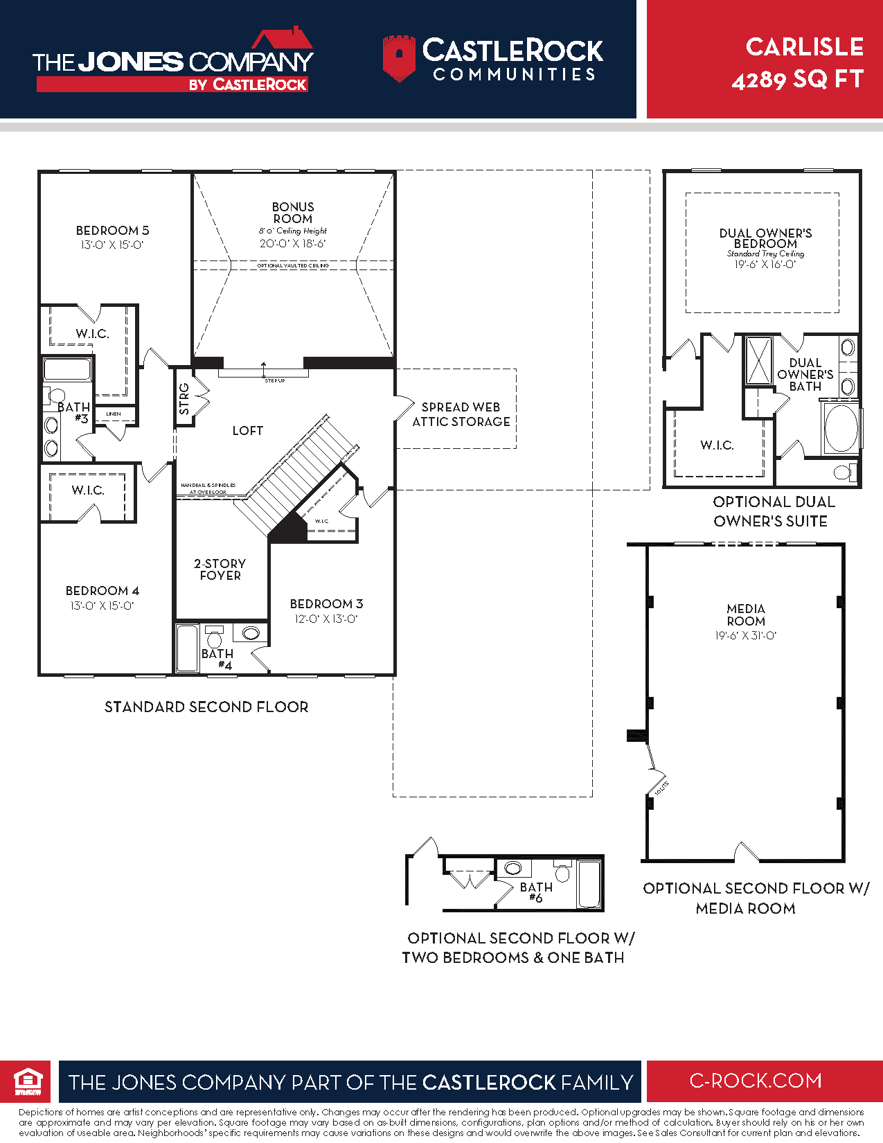
The enchanting Carlisle floor plan boasts luxury and functionality, creating the ultimate living experience. Enter through the home from the expansive front porch, and you’ll be met with a grand, 2-story foyer that flows seamlessly to the secluded study and formal dining room. Down the hall, past the convenient butler’s pantry and powder room, lies the spacious great room, with 10-ft tall ceilings, a beautiful fireplace, and abundant natural light, making this the perfect space for your gatherings with family and friends. Open to the great room is the sizable kitchen and breakfast nook. The kitchen comes stocked with top-notch appliances, designer light fixtures, gorgeous countertops, and an island providing ample counter space. Adjacent to the kitchen is the cozy breakfast nook, perfect for enjoying casual meals with loved ones. For those who like to enjoy the outdoors, you can opt to include a covered living area right off the breakfast nook! Completing the first floor is the secondary bedroom and bathroom, as well as the luxurious master suite including separate dual vanities, a freestanding tub, a walk-in shower, and a large walk-in closet. Upstairs, a spacious bonus room and loft provide additional living space for entertainment or relaxation. There is also three additional bedrooms, two bathrooms, and storage space available upstairs. The options in the Carlisle home are plentiful! Downstairs, you can swap Bedroom #2 for a hearth room or sun room, while upstairs, you can opt for a larger bonus room, a secondary master suite, or a media room. For those wanting a separate space to call their own, opt to include a finished basement with a recreation room, additional bedrooms, and bathrooms. Rest assured, you can personalize the Carlisle home the way you have always imagined.
Starting at $935900
Request More Information
Contact Us
By providing your phone number, you consent to receive SMS messages from CastleRock Communities regarding your request. Message and data rates may apply, and frequency varies. Reply STOP to opt out or HELP for more info. Privacy Policy
PLAN ELEVATIONS
VIRTUAL TOUR
PLAN VIDEO
INTERACTIVE TOUR
Please make an appointment • Northwest Hwy and Dice Lampley Rd Fairview, TN 37062
Mon - Thurs & Sat: 10am-6pm Fri: 11am-6pm Sun: 12pm-6pm
Directions From Builder
















































