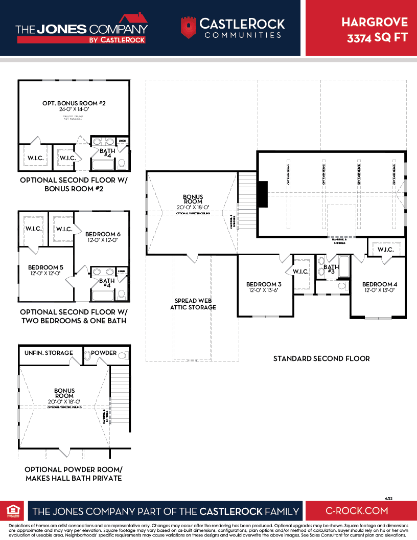
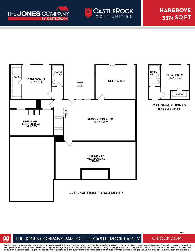
Hargrove
Belvoir
Hargrove
Bedrooms
4
Baths
3
Garages
3
SQ FT
3374
Story
2
Introducing the Hargrove plan, a 3,374 sq. ft. dream home - a haven that combines luxury, convenience, and style. With four bedrooms, three-and-a-half bathrooms, and a two-story design, this spacious retreat is perfect for those seeking both comfort and sophistication. As you step through the front door, you'll be greeted by an exquisitely designed interior. From the moment you enter, the architectural details, including the windows and doors, will leave you in awe. The Hargrove boasts a master suite downstairs with a beautiful trey ceiling, providing a private sanctuary for relaxation after a long day. And for those looking to indulge in the ultimate spa-like experience, there's an optional deluxe master bath available. In addition to the bedrooms, this home offers a bonus room with an optional vaulted ceiling - perfect for a playroom or entertainment space. Storage space is abundant throughout the house, ensuring that every item has its place. With the option of adding a second floor, you have even more flexibility to customize your living space. The gourmet kitchen is another standout feature, offering a culinary oasis where creativity can flourish. From the great room to the casual dining area and covered patio, every corner of this home is thoughtfully designed to meet your lifestyle needs. The Hargrove also features a family foyer and a study with French doors - ideal for those who work from home or desire a dedicated space for quiet reading or studying. With its impeccable craftsmanship and attention to detail, the Hargrove home is the epitome of luxury living. Don't miss the opportunity to make this masterpiece your own.
Starting at $891900
Request More Information
Contact Us
By providing your phone number, you consent to receive SMS messages from CastleRock Communities regarding your request. Message and data rates may apply, and frequency varies. Reply STOP to opt out or HELP for more info. Privacy Policy
PLAN ELEVATIONS
VIRTUAL TOUR
PLAN VIDEO
INTERACTIVE TOUR
Please make an appointment • Northwest Hwy and Dice Lampley Rd Fairview, TN 37062
Mon - Thurs & Sat: 10am-6pm Fri: 11am-6pm Sun: 12pm-6pm
Directions From Builder







































